Se enlista a continuación las observaciones y ajustes solicitados durante nuestra última reunión en relación con el proyecto de remodelación. Agradecemos la retroalimentación y confirmamos nuestra disposición para integrar las siguientes modificaciones:
Preservación del techo de la primera habitación: Se respetará el techo existente en la primera habitación, considerando que el INAH podría no autorizar su demolición.
Conservación del zaguán: Se mantendrá el zaguán entre la primera habitación (convertida en sala) y la escalera, según lo solicitado.
Cubierta de madera en el patio central: Se integrará una cubierta de madera en el patio central conforme a la referencia proporcionada en la imagen adjunta (Imagen 1).
Alternativa B - Techo de la recámara del fondo: Se desarrollará una segunda opción para el techo de la recámara del fondo, proponiendo un diseño tradicional plano en lugar de la bóveda de medio punto inicialmente planteada.
Alternativas C y D - Recámara adicional: Se elaborarán dos opciones para la recámara adicional número 4:
Alternativa C: Ubicada sobre la recámara del fondo.
Alternativa D: Situada en un tercer nivel.
Estas observaciones son atendidas y presentadas en esta pagina web para su revisión y aprobación. Quedamos atentos a cualquier comentario adicional y reiteramos nuestro compromiso con el éxito del proyecto.
OBJETIVO:
Casa DM
29 de enero de 2025.
Culiacán, Sin.


Anteproyecto Arquitectónico 02
Cambios respecto al proyecto anterior:
Conservación del techo en la habitación inicial:
Se propone que, al acceder por la puerta principal, se llegue directamente a la sala, la cual mantiene una altura de 2.75 m de piso a techo. A través de un gran ventanal, se obtiene una vista hacia el zaguán. Aunque sus dimensiones se reducen, al estar adosado y abierto hacia la escalera, se gana significativamente en la percepción de amplitud. Se sugiere colocar una cubierta de madera, con un cristal superior que permita proteger el espacio del agua de lluvia, manteniendo ventilación por los costados de dicha cubierta.Ubicación de la recámara 2 sobre la sala:
Se sitúa la recámara 2 justo encima de la sala, con una altura de 2.40 m de piso a techo. Esta recámara también disfruta del ventanal con vista al zaguán, lo que proporciona una gran percepción de amplitud y luminosidad al espacio. Además, se le agrega un baño completo para mayor funcionalidad.Mejora en iluminación de la cocina:
Se propone que la cocina cuente con una puerta de cristal que permita la entrada de luz natural proveniente del zaguán, mejorando así la iluminación y ventilación del espacio.Cubierta de madera en el patio de la alberca:
En el área del patio donde se ubica la alberca, se incorpora una cubierta de madera rectangular, colocada a una altura adecuada para no obstruir la vista desde la recámara 3. Esta cubierta contrasta con la bóveda de medio punto existente en la recámara principal, dejando un espacio entre ambas para poder apreciar la copa del árbol de ceiba, lo que enriquece la experiencia visual y aporta carácter al entorno.


Recorrido virtual de Anteproyecto 02

























Alternativa "B"
Se desarrollará una segunda opción para el techo de la recámara del fondo, proponiendo un diseño tradicional plano en lugar de la bóveda de medio punto inicialmente planteada.



Vista 360º
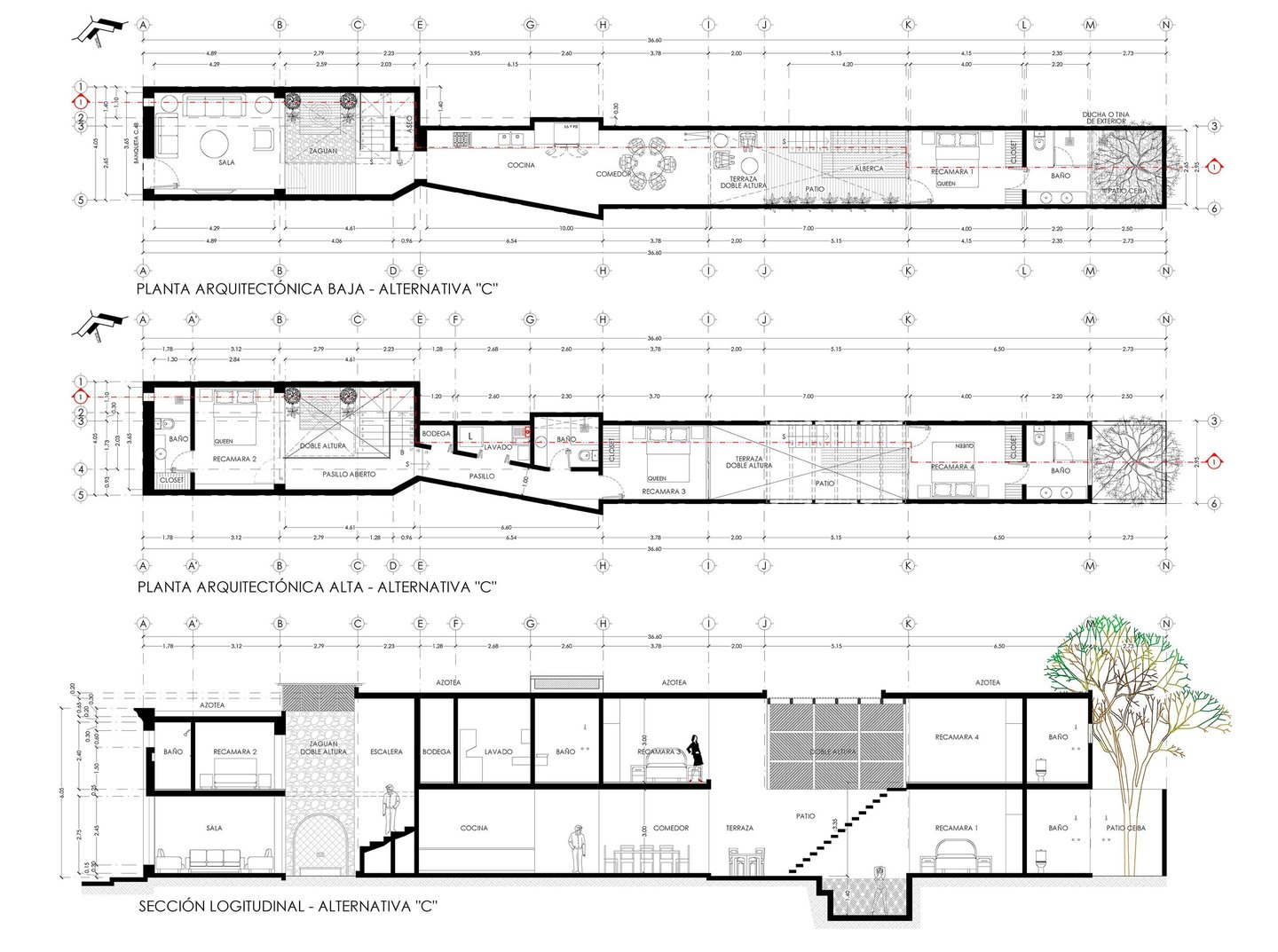
Alternativa "C"
Esta opción "C" surge de la necesidad de incorporar una cuarta recámara. Para ello, se retoma como base el anteproyecto 02, ubicando esta nueva recámara sobre la recámara 1. La propuesta contempla que cuente con su propio baño y vestidor, así como una escalera adicional que se localizaría en el área de la alberca.
Si bien la solución es aparentemente sencilla, presenta algunas desventajas. La primera es que la escalera podría generar una sensación de ahorcamiento en el angosto patio, incluso si se diseña lo más transparente posible. La segunda desventaja surge al considerar la convivencia con niños, quienes podrían verse tentados a arrojarse desde la escalera a la alberca, lo cual representa un riesgo considerable debido al espacio reducido y la posibilidad de accidentes.


Alternativa "D"
La opción “D”, al igual que la anterior opción “C”, retoma como base el anteproyecto 02. En este caso, la nueva recámara se ubica en un tercer nivel, extendiendo la escalera principal y generando un gran vestíbulo a triple altura. La cubierta de madera del zaguán se prolonga, integrándose con una terraza ubicada sobre la sala y la recámara 2.
La nueva recámara contará con su propio baño, será más amplia que el resto de las recámaras y dispondrá de un balcón privado con vista hacia la parte posterior de la propiedad.


Observaciones
Te invitamos a compartir tus observaciones o dudas acerca del proyecto
